移动核酸检测车是ky体育网页入口登录特种车为新冠疫情研发的新兴产品,移动核酸检测车以双轴货车底盘为基础进行改装设计。移动核酸检测车的车厢骨架采用方钢焊接而成,坚固稳定。车厢壁由瓦楞板加保温层构成,可以全天候保持室内环境舒适。
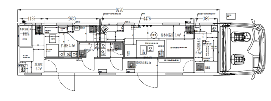
移动核酸检测车按功能可分为试剂准备区、样本制备区、扩展分析区、消杀区和设备间。

试剂准备区是进行分装和制备主反应混合液的区域。此区域设有超净工作台,确保在工作台内操作的试剂不受污染。工作台内放置处理试剂的移液器和小型离心机。为了保证空间环境洁净,本区配置了一台紫外线消毒车进行消毒杀菌作业。试剂以及用于制作标本的材料要直接运送到该区域不能经过其他区域,且保存在低温冰箱中。为防止试剂受到污染该区域通常为+10Pa的压差。
样品制备区主要进行样品的保存,核酸提取,样品的混样以及测试样品的制备。为了防止有害悬浮微粒和气溶胶扩散,该区域保持在-10Pa压差。该区域通常放置以下设备:
设备
功能
生物安全柜
工作区域保持负压状态,可防止有害悬浮微粒和气溶胶的扩散
低温冰箱
保存样本及提取出的核酸等
离心机
用于收集微生物菌体、细胞碎片以及其他沉淀物
移液器
准确量取特定体积的溶液
混匀仪
样本移取前充分混匀
核酸提取仪
提取溶液中的核酸用于下一步扩增分析
紫外线消毒车
空间环境消毒
移动核酸检测车扩增分析区是主要进行核酸扩增和分析的区域。该区域保持在-20Pa压差,可以有效避免扩增产物从本区扩散至其他区域。该区域放置的PCR 分析仪器可以完成核酸扩增和分析的任务。本区也会配一台紫外线消毒车在实验前后对空间环境进行消毒。

除了各实验室的紫外线消毒车外,ky体育网页入口登录PCR实验室设有一个专门的消杀区,该区域配有一台高压灭菌锅,可以对实验器材,个人物品等进行高压杀菌灭毒。

设备区是为实验室提供电力、新风、收集并处理污水、放置空调外机的区域。设备区为实验室的安全稳定运行提供必不可少的支持。

ky体育网页入口登录公司生产的核酸检测实验室,适应各种地形地势,可快速到达疫情发生地。咽拭子、鼻拭子等样品采集后无需转运到固定点检测,采集完就能当场检测。做到随采随测,大大缩短检测时间,降低病毒传播风险。为疫情防控争取更多的时间。
联系人:13922709440 余先生
销售热线:0724-4016818
售后服务:19171569097
服务热线:400-800-8232
邮 箱:xianhao266@163.com
公 司:湖北省ky体育网页入口登录装备科技有限公司
地 址:湖北省钟祥市南湖新区协企联盟产业园C6栋